Опора несиловая круглоконическая НФК ОКК

Основной признак несиловых опор: подсоединяемый электрический кабель проводится под землёй и монтируется внутри полой металлической опоры. Конструкции этого типа широко распространены благодаря видовому разнообразию, высоким эксплуатационным и декоративным характеристикам.

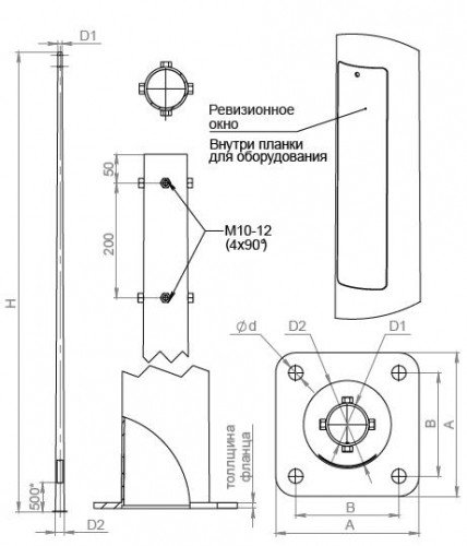
Изделия используются для организации освещения самых разнообразных городских объектов. При необходимости на них размещаются видеокамеры, рекламные баннеры. Круглоконические (конические) изготавливаются из листовой стали 2-4 мм методом гибки. Гладкий ствол в виде конуса имеет только один сварной шов. Изделия до 5 м высотой оснащаются венчающими светильниками. При высоте 7-10 м оборудуются светильниками консольного типа с применением кронштейнов. Характеристики

НаименованиеВысота мм.Диаметр верх.ствола мм.Диаметр низа ствола мм.Размер фланца мм.Межцентровое расстояние мм.Толщина стенки мм.
НФК-4,04000601101901403
НФК-5,05000601352301803
НФК-6,06000751462712003
НФК-7,07000751592301803
НФК-8,08000751713202303
НФК-9,09000751834003004
НФК-10,010000751954003004
ОКК-4,0400060752401603
ОКК-5,05000601801901303
ОКК-6,06000601362501603
ОКК-8,08000601562501803
ОКК-10,010000751764003004

8-953-008-51-47

Позвоните нам или отправьте заявку

Сделать заказ